株式会社ニューテック株式会社ニューテック

コンクリート構造物の調査・診断

耐震診断(建築)

耐震診断

建物調査を実施し、耐震性の評価を行います。

目視・打診調査
目視・打診調査

配筋調査(鉄筋探査)
配筋調査(鉄筋探査)

コア採取
コア採取

建物調査の例

その他、不動沈下量の測定や部材寸法
測定などを行います。
採取したコアの試験は、自社の試験所
(ISO/IEC 17025認定;東京都試験機
関登録)にて実施可能です。

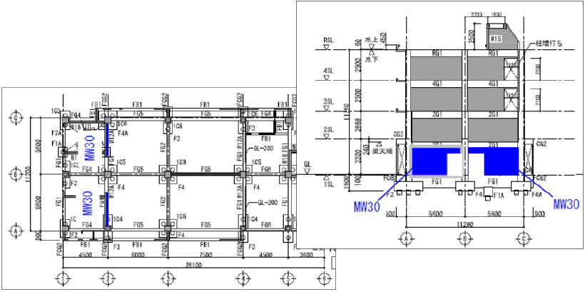
復元図の作成
復元図の作成

耐震診断結果のデータの例
耐震診断結果のデータの例

耐震補強設計

耐震診断の結果に基づき、建物の機能や工期、費用などを考慮し、最適な補強計画を提案します。

補強計画案の例

補強計画案の例


鉄骨ブレース補強の例

鉄骨ブレース補強の例

鉄骨ブレース補強の例

アラミド繊維補強の例

アラミド繊維補強の例

アラミド繊維補強の例